en
ru
Проекты
О нас
Медиа
Контакты
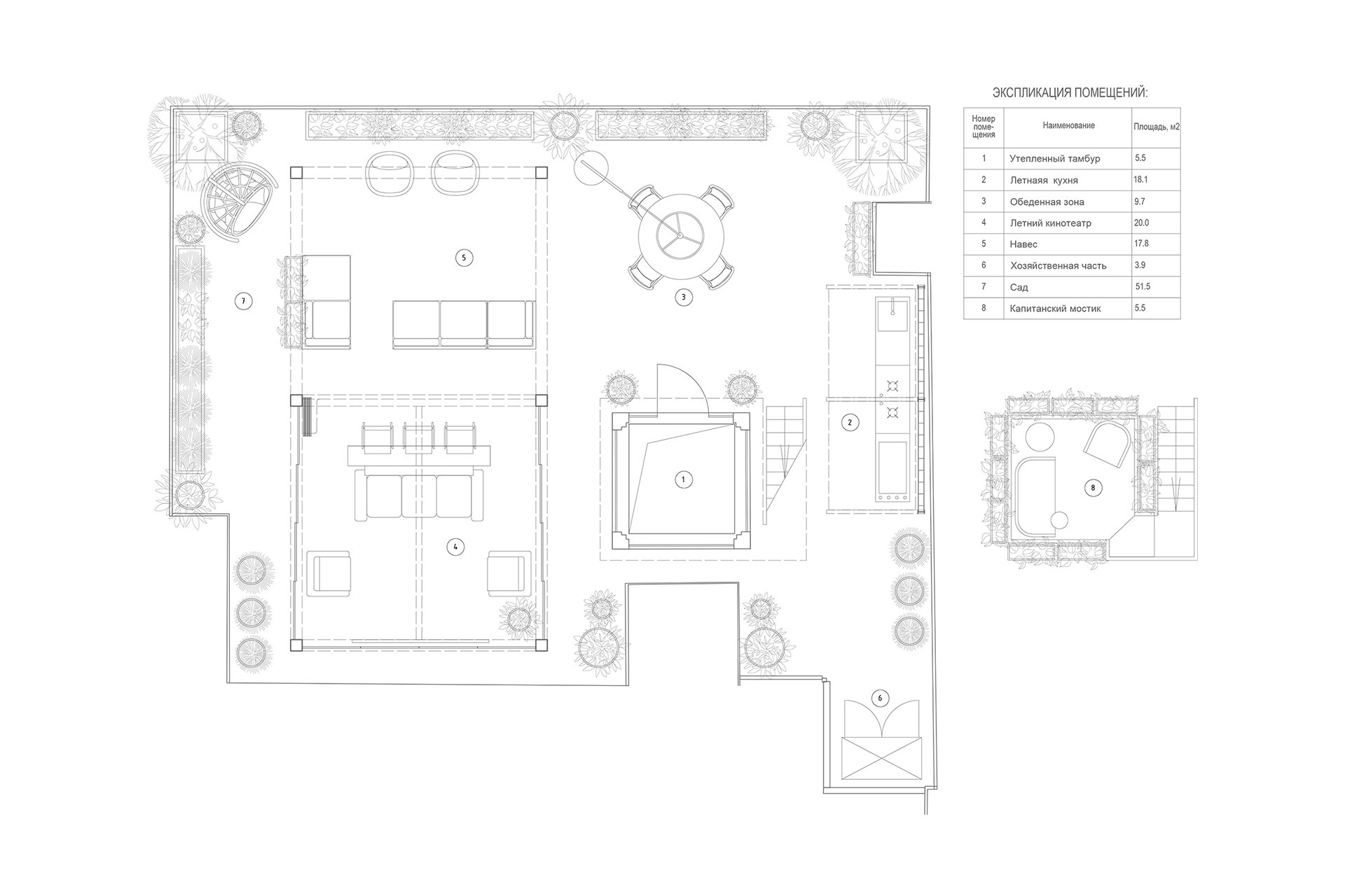
Терраса на крыше в центре города
Подробнее
Москва, 2025 г.
Общая площадь — 120м²