Реконструкция виллы на острове Бали

Подробнее

Убуд, 2025 г. 

Общая площадь — 750м²

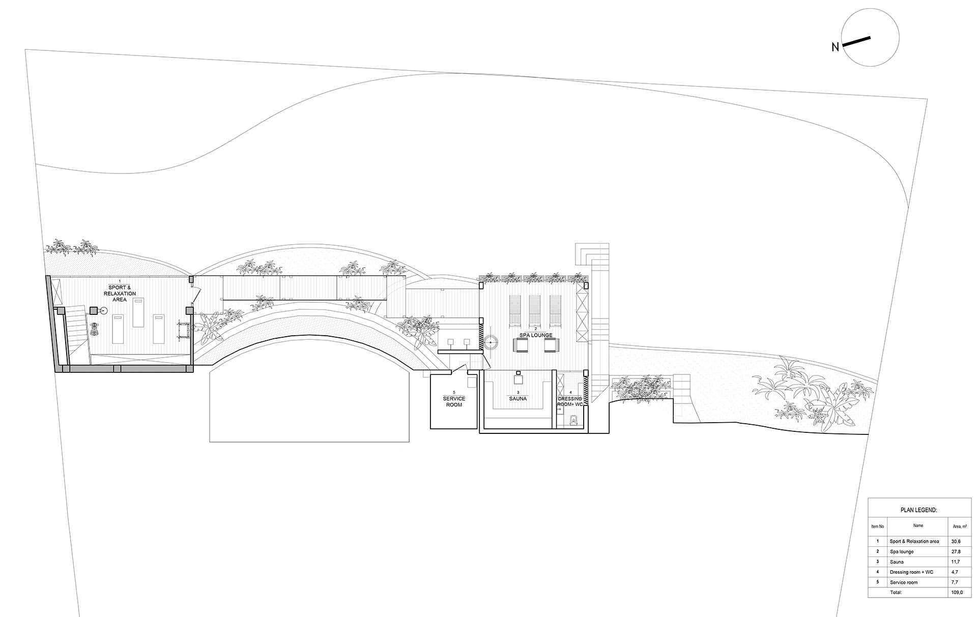
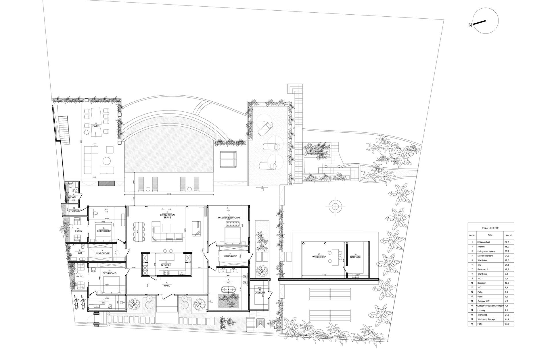
Проект направлен на создание гармоничной, функциональной и эстетически выразительной среды, в которой внутренние и внешние пространства органично перетекают друг в друга. Основная идея заключается в реорганизации пространства вокруг бассейна, делая его центральным элементом, связывающим интерьер и экстерьер. Акцент на природных элементах и мотивах подчёркивает связь виллы с окружающим ландшафтом. Нижний уровень будет преобразован в спа-зону со всеми необходимыми удобствами и удобными связями с верхним уровнем.

Дополнительной задачей является интеграция художественных мотивов клиента — поскольку клиент является художником — в дизайн виллы, чтобы выразить его индивидуальность и сформировать уникальную дизайнерскую концепцию, которая продолжается и в интерьере. Добавление художественной мастерской усиливает уникальный творческий характер комплекса, обеспечивая приватность и функциональную значимость.

При участии  Виталия Афонина, Дарьи Храмовой